Heideviertel in Halle-Nietleben – im Verkauf
Bebauungsplan Nr. 73 „Wohngebiet Bennstedter Straße/Granau“ der Stadt Halle (Saale)

Lage
Der begehrte Stadtteil Nietleben in Halle (Saale) zeichnet sich durch eine gute Infrastruktur sowie viele Möglichkeiten zur Freizeitgestaltung aus. Schnelle Verbindungen in die Innenstadt und in alle weiteren Stadtteile von Halle (Saale) sind durch den öffentlichen Personen-Nahverkehr sowie die angrenzende Bundesstraße B 80 gegeben. Einkaufsmöglichkeiten, Ärzte, Kindergärten und Schulen befinden sich im näheren Umfeld des Standortes und sind größtenteils zu Fuß zu erreichen.
Es ergibt sich eine Symbiose aus einem ruhigen, dörflichen Wohngebiet mit allen Vorteilen, die eine Stadt zu bieten hat. Ein Highlight ist die Nähe zur Dölauer Heide und dem Heidesee.


Projekt
Das Neubauprojekt „Heideviertel – Halle Nietleben“ beinhaltet die Bebauung einer vorliegenden Brachfläche. Entstehen wird ein modernes Baugebiet mit freistehenden Einfamilienhäusern, Doppelhäusern sowie Einfamilienhäusern in „back to back“ Bauweise – „e²-Haus“ und „H²-Haus“.
Die Firma F.K. Horn GmbH & Co KG Bauunternehmung wird im Baugebiet die Grundstücke erschließen und mit 55 Einfamilienhäusern als Bauträger bebauen. Die Grundstücksflächen variieren zwischen ca. 300 m² und ca. 1.300 m². Die Inhalte zur Errichtung Ihres schlüsselfertigen Hauses, bestimmen Sie ganz individuell in Absprache mit dem Büro der A1 Immobilien GmbH.
Der Bebauungsplan Nr. 73 der Stadt Halle (Saale) sieht eine maximale Geschossigkeit von 2 Vollgeschossen vor. Bei der Bebauung wird größter Wert auf Qualität und Nachhaltigkeit gelegt. Es bestehen verschiedene Fördermöglichkeiten, beispielsweise über KfW-Programme. Ihre individuelle Note können Sie stets, unter Beachtung der statischen Machbarkeit, in die Planung einfließen lassen.

Freistehende Einfamilienhäuser
Das Baugebiet weist 25 Baugrundstücke aus, die zur individuellen Bebauung mit Einfamilienhäusern bestimmt sind. Wir haben für Sie verschiedene Typhäuser vorgeplant und greifen dabei verschiedene Spezifika des modernen Wohnens auf. Ihre Individualität steht dabei immer im Fokus. Entsprechende Anpassungen und wünsche können wir auf kurzem Wege umsetzen und stehen Ihnen stets beratend zur Seite.
Sie haben unter unseren Typhäusern nichts für Sie passendes gefunden. Teilen Sie uns dies gern mit und wir prüfen für sie ein individuelles Baukonzept.
Folgend können Sie einige Beispielobjekte sichten. Unser gesamten Portfolio stellen wir Ihnen gern persönlich vor. Die konkreten Angebote finden Sie weiterhin unter Häuser auf dieser Homepage.

Beispielhaus ca. 130 m²




Ausstattung
– Schlüsselfertiges Massivhaus im Sinne der Standardbaubeschreibung
– Standardhaus gem. Neufassung des Gebäudeenergiegesetzes (GEG) ab 01.01.2023, entspricht dem Effizienzstandard E55
– Mauerwerk aus dem natürlichen Baustoff Kalksandstein mit Wärmedämmverbundsystem (WDVS)
– Flachdach mit dreiseitiger Attika
– Kunststofffenster mit Dreischeiben-Isolierverglasung innen weiß und außen anthrazit (RAL 7016)
– elektrisch betriebene ALU-Rollläden anthrazitfarben (RAL 7016) an allen Fensterelementen
– SAT-Anlage
– Kunststoff-Hauseingangstür Farbe anthrazit RAL 7016 inklusive Lichtöffnungen mit satinierter Verglasung
– Luft-Wasser-Wärmepumpe der Firma Wolf oder gleichwertig mit Warmwasserspeicher
– Fußbodenheizung in allen Räumen mit Einzelraumregelung
– Wandflächen mit Malervlies
– Weißlack-Dekor-Innentüren
– Innentreppe massiv
– Treppengeländer als Stahlkonstruktion in anthrazit mit Edelstahlhandlauf
– Fußbodenbeläge aus Fliesen und Vinylbelag oder Massiv-Parkett in verschiedenen Sorten
– Handtuchheizkörper im Bad im OG
– Gäste-Bad im Erdgeschoss mit bodengleicher Dusche, Waschbecken und WC
– Waschmaschinenanschluss im Hauswirtschaftsraum EG
– Tageslichtbad im Obergeschoss mit Waschbecken, Einbaubadewanne, bodengleicher Dusche und WC
– umfangreiche Elektroausstattung
– Außenanlage mit gepflasterter Zufahrt, Wege und PKW-Stellplatz
– Terrasse gepflastert
– viele weitere Ausstattungsmerkmale
Die Sanitär- und Elektroausstattung, die Parkettböden sowie die Boden- und Wandfliesen können vom Käufer individuell bemustert werden, so dass jeder seine eigenen Vorstellungen und Wünsche bei der Gestaltung seines neuen Eigenheimes verwirklichen kann.
Im Kaufpreis sind enthalten:
– Grundstück, erschlossen, in Größe von ca. 729 m²
– Einfamilienhaus mit ca. 112 m² Wohnfläche im Bauhausstil, schlüsselfertig entsprechend Planung und Baubeschreibung
– Ingenieurleistungen/Architekt
– Außenanlage: Zuwegung/Zufahrt zum Haus, PKW-Stellplatz, Terrasse
– Erschließungs- und Baunebenkosten wie Hausanschlüsse und Baustrom

„back to back“ – e²-Haus
Komplett verkauft!
Im Baugebiet werden vier e²-Häuser gebaut.
Das e²-Haus erfüllt die Ansprüche an modernes Wohnen. Es wird das Grundkonzept eines Einfamilienhauses aufgenommen und spezifisch in „back to back“ Bauweise realisiert. Ein e²-Haus beinhaltet vier Einfamilienhäuser mit Flachdach, Dachterrasse und Grundstücksanteil.
Die Grundrissgestaltung ist modern und entspricht den heutigen Ansprüchen einer jungen Familie. Die ca. 143 m² Wohnfläche bietet ein großes Raumangebot und individuelle Gestaltungsmöglichkeiten. Große Fensterflächen und eine hochwertige Ausstattung runden das Angebot ab.
Der Wohnraum
Das Erdgeschoss bildet den Fokus des vorhandenen Wohnraumes. Hier sind die Diele, der Hauswirtschaftsraum, ein Abstellraum, die Küche, Gäste- WC sowie der große Wohn- und Essbereich mit Zugang zur Terrasse/zum Grundstück zu finden. Im Obergeschoss befinden sich drei Schlafräume und ein Bad mit Dusche und Wanne. Im Dachgeschoss erschließt sich ein großzügiger Raum, ein weiteres Bad mit Dusche sowie die große Dachterrasse.
Der Außenbereich
Der Außenbereich wird mit gepflasterten Zuwegungen, einem befestigten Gerätegartenhaus sowie einem massivem Platz zur Abfallentsorgung ausgestattet.
Das Einfamilienhaus überzeugt mit vielen Highlights und zeichnet sich durch seine hochwertige Ausstattung aus.
- Neubaustandard nach dem Gebäudeenergiegesetz (GEG)
- Mauerwerk aus dem natürlichen Baustoff Kalksandstein mit Wärmedämmverbundsystem (WDVS)
- Kunststofffenster mit Dreischeiben-Isolierverglasung
- elektrisch betriebene ALU-Rollläden an allen Fensterelementen
- SAT-Anlage
- begrüntes Flachdach
- Aluminium-Hauseingangstür inklusive Lichtöffnungen
- Luft-Wasser-Wärmepumpe von der Firma Wolf oder gleichwertig mit Warmwasserspeicher
- Gegensprechanlage
- Weißlack-Dekor-Innentüren
- Innentreppen massiv mit Trittstufen in Granit grau matt und Setzstufen in Betonoptik
- Treppenauge vom EG bis ins 1. OG wird in Trockenbauweise geschlossen
- Geländer der Innentreppe vom OG zum DG aus Stahlkonstruktion mit anthrazitfarbener Endlackierung
- Fußbodenbeläge aus Fliesen und Vinylbelag oder Massiv-Parkett in verschiedenen Sorten
- Fußbodenheizung in allen Räumen mit Einzelraumregelung
- Handtuchheizkörper wahlweise im Ober- oder Dachgeschossbad
- Gäste-WC im Erdgeschoss mit Waschbecken und WC
- Waschmaschinenanschluss im Abstellraum EG
- Tageslichtbad im Obergeschoss mit Waschbecken, Einbaubadewanne, bodengleicher Dusche und WC
- Tageslichtbad im Dachgeschoss mit Waschbecken, bodengleicher Dusche und WC
- Rauchwarnmelder
- viele weitere Ausstattungsmerkmale



h²-Haus - Neu in der Vermarktung
Im Baugebiet werden vier h²-Häuser, in verschiedenen Bauabschnitten, gebaut. Die Häuser werden komplett schlüsselfertig und ohne Restleistungen an die neuen Eigentümer übergeben.
Das h²-Haus erfüllt die Ansprüche an modernes Wohnen. Es wird das Grundkonzept eines Einfamilienhauses aufgenommen und spezifisch in „back to back“ Bauweise realisiert. Ein h²-Haus beinhaltet vier Einfamilienhäuser mit Flachdach und Grundstücksanteil.
Die Grundrissgestaltung ist modern und entspricht den heutigen Ansprüchen einer jungen Familie. Die ca. 120 m² Wohnfläche bietet ein großes Raumangebot und individuelle Gestaltungsmöglichkeiten.
Aufgrund der Spezifik der Häuser sind diese nicht nur als Selbstnutzer Objekte, sondern auch für Kapitalanleger Interessant. Nachhaltig hohe Mieten in einem familienfreundlichen und idyllischen Standort sind als sicher einzuschätzen.

Wohnraum


Außenbereich
Das Doppelhaus im Heideviertel
in Halle Nietleben – im Verkauf

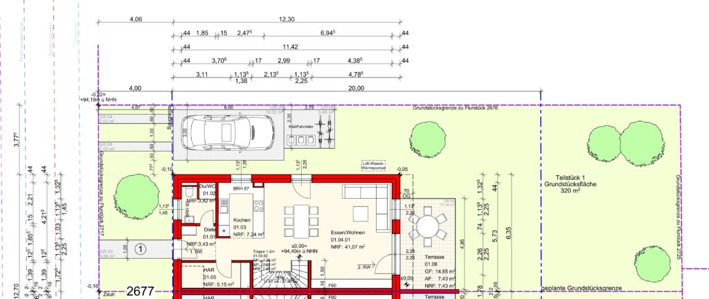
Das Gebäude mit ca. 130,65 m² Wohnfläche wird massiv auf einem ca. 320 m² großen Grundstücksanteil gemäß Gebäudeenergiegesetz (GEG) als Standardhaus (KfW 55) errichtet. Die Doppelhaushälfte besteht aus einem modernen 2-geschossigen Baukörper mit massivem Flachdach und stellt sich wie folgt dar:
ERDGESCHOSS (Wohnfläche ca. 68,77 m²):
– Diele
– Gästebad mit Dusche, Waschbecken und WC
– Abstell-/Hauswirtschaftsraum
– großzügiges, lichtdurchflutetes Wohn- und Esszimmer mit offen gestaltetem Küchenbereich sowie mit Zugang zur nach Osten ausgerichteten Terrasse und einer zweiten Terrassentür zum Außenbereich
OBERGESCHOSS (Wohnfläche ca. 61,88 m²)
– Flur
– geräumiges Schlafzimmer
– ein Kinderzimmer
– ein Zimmer für Büro/Gäste oder als zweites Kinderzimmer
– Tageslichtbad mit Wanne, Waschbecken, WC und Waschmaschinenanschluss


Investor, Erschließung, Bauträger, Vermarktung

Das Team der A1 Immobilien GmbH, bestehend aus vier hauptberuflichen Immobilienkaufleuten, arbeitet seit 1992 erfolgreich in der Region Halle (Saale) und dem Saalekreis. Dabei konnten sie bereits mehr als 2.000 Kaufverträge und eine Vielzahl von Mietverträgen erfolgreich zum Abschluss bringen. Neben den Maklertätigkeiten investiert und projektiert die Firma – Immobilien im Einfamilienhaus-, Mehrfamilienhaus- und Eigentumswohnungsbereich. Mehrere Baudenkmale in Halle (Saale) konnten unter unserer Regie in neuem Glanz erstrahlen und verschiedene Neubauprojekte prägen heute das Stadtbild von Halle (Saale) und dem Saalekreis.
Beide Partner konnten bereits gemeinsam eine Vielzahl von Erschließungs- sowie Neubaumaßnahmen erfolgreich umsetzen, wie beispielsweise die Projekte „Sophienhafen“ und „Weingärten“ in Halle (Saale).
Das Team der A1 Immobilien GmbH, bestehend aus vier hauptberuflichen Immobilienkaufleuten, arbeitet seit 1992 erfolgreich in der Region Halle (Saale) und dem Saalekreis. Dabei konnten sie bereits mehr als 2.000 Kaufverträge und eine Vielzahl von Mietverträgen erfolgreich zum Abschluss bringen. Neben den Maklertätigkeiten investiert und projektiert die Firma in den Immobilienbereichen Ein- und Mehrfamilienhäuser sowie Eigentumswohnungen. Mehrere Baudenkmale in Halle (Saale) konnten unter unserer Regie in neuem Glanz erstrahlen und verschiedene Neubauprojekte prägen heute das Stadtbild von Halle (Saale) und dem Saalekreis.

Wir beraten Sie individuell!
Gern beraten wir Sie in unseren Büroräumen in der Großen Steinstraße 21 in Halle (Saale) oder direkt vor Ort in Halle-Nietleben zu unserem Projekt.

Aktuelles / Bautenstand
Der offizielle erste Spatenstich hat am 1.10.2019 im Beisein verschiedener Akteure stattgefunden. Die Kinder der Grundschule Nietleben sorgten dabei mit verschiedenen Tänzen für Unterhaltung.
Update 10.10.2023
*Update Heideviertel – Halle-Nietleben*
Mittlerweile konnten bereits vier Verkaufsabschnitte erfolgreich umgesetzt werden. Der nächste Verkaufsabschnitt wurde vor kurzen eröffnet. Derzeit befinden sich verschiedene freistehende Einfamilienhäuser im Bau. Auch die neu in der Vermarktung befindlichen h²-Häuser befinden sich bereits in der Bauphase. Auch hier konnten wir bereits die ersten Verträge schließen.







