13 Fotos und Anhänge ansehen
A1 Immobilien GmbH
Große Steinstraße 21, 06108 Halle (Saale)
4

1Baugebiet Stand Juni 2025 reserviert

1Baugebiet Stand Juni 2025

Grundstück 4 im Baugebiet Heideviertel

Wohnumfeld, Zufahrt zum Wohngebiet

Animation DHH 2, Grdst. 4

Gestaltungsplan B-Plan 73

Ausstattungsvariante Flur

Ausstattungsvariante Innentreppe

Ausstattungsvariante Flur u. Zimmer im OG

Ausstattungsvariante Zimmer im OG

Ausstattungsvariante Bad

Umgebungsplan

Makrolage

Neues Angebot im „Heideviertel“ Nietleben: Großzügige Doppelhaushälfte mit Grundstück und Außenanlagen in naturnaher Umgebung (Grdst. 4, DHH 2)

Eckdaten

  • Art Doppelhaushälfte
  • Lage Zappendorfer Straße
    06126 Halle (Saale)
  • Kaufpreis 419.000,00
  • Wohnfläche ca. 131
  • Grundstück ca. 321
  • Zimmer 4
  • Baujahr 2025
  • Heizungsart Wärmepumpe
  • Stellplatztyp
  • Bezugstermin 4. Quartal 2026
  • Ausstattung des Bades Badewanne Dusche Fenster
  • Zustand projektiert
  • Immobilien-ID 300780

Immobilie

Die Immobilie wird in unmittelbarer Nähe zum Heidesee im Bereich des Baugebietes "Bebauungsplan Nr. 73 Bennstedter Straße/Granau der Stadt Halle/Saale" im Stadtteil Nietleben errichtet und erfüllt die Ansprüche an modernes Wohnen.

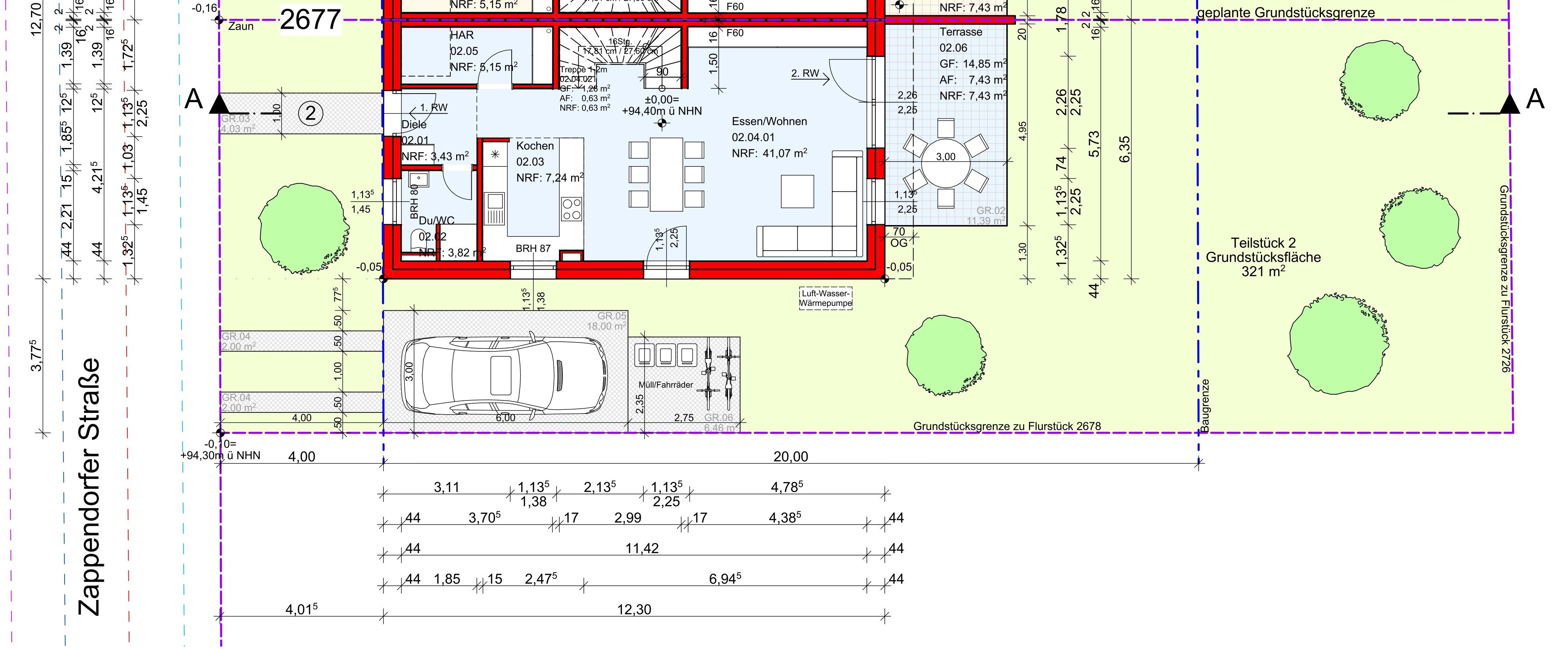
Dieses Angebot bezieht sich auf die Doppelhaushälfte 2 auf dem Grundstück Nr. 4 (siehe Gestaltungsplan). Das Gebäude mit ca. 130,65 m² Wohnfläche wird massiv auf einem ca. 321 m² großen Grundstücksanteil gemäß Gebäudeenergiegesetz (GEG) als Standardhaus (KfW 55) errichtet. Die Doppelhaushälfte besteht aus einem modernen 2-geschossigen Baukörper mit massivem Flachdach und stellt sich wie folgt dar:

ERDGESCHOSS (Wohnfläche ca. 68,77 m²):
- Diele
- Gästebad mit Dusche, Waschbecken und WC
- Abstell-/Hauswirtschaftsraum
- großzügiges, lichtdurchflutetes Wohn- und Esszimmer mit offen gestaltetem Küchenbereich sowie mit Zugang zur nach Osten ausgerichteten Terrasse und einer zweiten Terrassentür zum Außenbereich

OBERGESCHOSS (Wohnfläche ca. 61,88 m²)
- Flur
- geräumiges Schlafzimmer
- ein Kinderzimmer
- ein Zimmer für Büro/Gäste oder als zweites Kinderzimmer
- Tageslichtbad mit Wanne, Waschbecken, WC und Waschmaschinenanschluss

Das Haus wird bezugsfertig an Sie übergeben, inklusive aller Innenausbauarbeiten. Vom Bodenbelag über die Malerarbeiten bis zur kompletten Ausstattung der Sanitärbereiche – alles wird fertiggestellt, sodass Sie direkt einziehen können.

Dieses Einfamilienhaus in Nietleben verbindet modernes Wohnen und eine naturnahe Lage zu einem unschlagbaren Angebot. Es ist die perfekte Wahl für Familien, die ein komfortables Zuhause in einer ruhigen und familienfreundlichen Umgebung suchen. Weiterhin sind die Außenanlagen hergestellt. Dies umfasst die Pflasterung der Wege und des Pkw-Stellplatzes, die Terrasse mit Plattenbelag sowie einen massiven Sichtschutz zum Nachbarn.

Lage

Nietleben ist ein im Westen gelegener Stadtteil von Halle (Saale), mit einer Einwohnerzahl von ca. 2.600 Einwohnern. In Objektnähe befindet sich der Stadtwald „Heide“ mit dem Freibad im angelegten Heidesee. Das Bad ist in wenigen Gehminuten erreichbar. Im Ort selbst befinden sich Ärzte, Kitas, eine Schule, Restaurants, Einkaufsmöglichkeiten sowie weitere Einrichtungen des täglichen Bedarfs. Die Innenstadt von Halle (Saale) ist zügig mit dem Auto oder auch mit den öffentlichen Verkehrsmitteln zu erreichen. Bus-, Straßenbahn- und S-Bahnhaltestellen befinden sich im direkten Umfeld. Die nächstgelegene Bundesautobahn ist die BAB 143 mit Übergang zur BAB 38, die Anfahrt erfolgt über die Bundesstraße 80. Diese befindet sich ca. 1 km entfernt.

Ausstattung

- Neubaustandard nach dem Gebäudeenergiegesetz (GEG)
- Mauerwerk aus dem natürlichen Baustoff Kalksandstein mit Wärmedämmverbundsystem (WDVS)
- Kunststofffenster in Weiß mit Dreischeiben-Isolierverglasung
- mechanisch betriebene ALU-Rollläden in Grau an allen Fensterelementen
- Kunststoff-Hauseingangstür in Weiß mit Lichtöffnungen
- Luft-Wasser-Wärmepumpe mit Warmwasserspeicher, ca. 150 Liter
- Weißlack-Dekor-Innentüren
- Innentreppe als einläufige Zweiholmtreppe mit massiven Holztrittstufen
- Fußbodenbeläge aus Fliesen und Vinylbelag oder Massiv-Parkett in verschiedenen Sorten
- Wandflächen im Wohnzimmer und in der Küche mit Malervlies, die übrigen Zimmer mit Raufasertapeten
- Fußbodenheizung in allen Räumen mit Einzelraumregelung
- Handtuchheizkörper
- Gäste-Bad im Erdgeschoss mit Dusche, Waschbecken, WC und Fenster
- Tageslichtbad im Obergeschoss mit Waschbecken, Einbaubadewanne, WC und Waschmaschinenanschluss
- Terrasse mit Plattenbelag
- Zuwegungen, Pkw-Stellplatz und Zufahrt zum Stellplatz mit Rechteckpflastersteinen
- massiver Sichtschutz zum Nachbarn

Die Sanitär- und Elektroausstattung, die Parkettböden sowie die Boden- und Wandfliesen können vom Käufer individuell bemustert werden, so dass jeder seine eigenen Vorstellungen und Wünsche bei der Gestaltung seines neuen Wohneigentums verwirklichen kann.

Keller Terrasse vorhanden Rollladen vorhanden

Sonstiges

Da die vorliegenden Grundrisse Vorabzüge sind, möchten wir darauf hinweisen, dass alle Maßangaben Circa-Werte sind und sich die Maße nach Vorliegen der Ausführungszeichnungen noch geringfügig ändern können.

Das Einfamilienhaus ist ab dem 4.Quartal 2026 verfügbar

Der Verkauf erfolgt provisionsfrei.

Gern stehen wir Ihnen für ein unverbindliches Beratungsgespräch zur Verfügung.

Ein Energieausweis ist noch nicht vorhanden, dieser wird derzeit erstellt.

Alle Angaben sind ohne Gewähr und basieren auf Informationen, die uns von unseren Partnern zur Verfügung gestellt wurden. Wir übernehmen keine Gewähr für die Vollständigkeit, Richtigkeit und Aktualität dieser Angaben. Irrtum und Zwischenverkauf vorbehalten.

Energieausweisangaben

  • Heizungsart Wärmepumpe

Grundrisse

Wie können wir Ihnen behilflich sein?

Herzlichen Dank für Ihre Anfrage.

Wir werden diese so schnell wie möglich bearbeiten.

Wie können wir Ihnen behilflich sein?
* Pflichtfeld