29 Fotos und Anhänge ansehen
A1 Immobilien GmbH
Große Steinstraße 21, 06108 Halle (Saale)
4

2aHausansicht

Hausansicht

Vorgarten

Hausansicht

Garage mit Überdachung

Garten

Hinteransicht mit Terrasse

Terrasse

Gartenhaus

Luftbild

Luftbild mit Wohnumfeld

Straßenseitige Ansicht

Diele

Diele

Wohn- und Esszimmer

Kamin

Küche mit Zugang zum Garten

Küche

Bad im Erdgeschoss

Gäste-WC

Galerie

Galerie im Dachgeschoss

Zimmer mit Küche im Dachgeschoss

Zimmer im Dachgeschoss

Bad im Dachgeschoss

Abstellraum im Dachgeschoss

Garage

Mikrolage

Makrolage

Wohnqualität auf hohem Niveau! Einbauküchen, Garage, Carport, Kamin, neuwertige Heizung, PV-Anlage ...

Eckdaten

  • Art Einfamilienhaus
  • Lage 04178 Leipzig
  • Kaufpreis 699.000,00
  • Wohnfläche ca. 220
  • Grundstück ca. 896
  • Zimmer 5
  • Baujahr 2008
  • Heizungsart Fußbodenheizung
  • Stellplatztyp Garage Carport
  • Bezugstermin sofort
  • Bodenbelag Fliesen Laminat
  • Ausstattung des Bades Badewanne Dusche Fenster Pissoir
  • Immobilien-ID 300802
  • Provision 2,62 % inkl. MwSt.

Immobilie

Von diesem Haus in einer gewachsenen und ruhigen Siedlungslage werden Sie begeistert sein. Hier müssen Sie mit Ihren Lieben nur noch einziehen und es sich gutgehen lassen. Haus und Garten sind fertig und warten auf Sie.

Das attraktive Einfamilienhaus mit Garage wurde im Jahr 2008 auf einem großzügigen Grundstück in Massivbauweise als Niedrigenergiehaus erbaut und liegt am westlichen Stadtrand von Leipzig. Hier finden Sie Ihre wohlverdiente Ruhe, haben aber dennoch die Infrastruktur einer Großstadt in der Nähe. Das Wohnhaus wurde mit viel Weitblick, Überlegung und Liebe zum Detail geplant. Schon der erste Eindruck zeigt die Großzügigkeit und das helle lichtdurchflutete Raumkonzept. Dies beginnt mit einer großen Diele mit freitragender Treppe zum Dachgeschoss und führt sich vor allem in dem 51 m² großen Wohn-/Esszimmer mit Erker und bodentiefen Fenstern fort. Zusätzlich erwartet Sie im Wohnzimmer für gemütliche Stunden daheim ein dekorativer Kachelkamin mit edlen Ofenkacheln. Das Haus wird mittels einer im Jahr 2020 neu installierten Luft-Wasser-Wärmepumpe beheizt, welche Sie in Kombination mit einer Photovoltaikanlage nachhaltig und kostengünstig mit Wärme und Energie versorgt.

Sie haben ein Kind, welches sich sein eigenes Reich wünscht und selbst versorgen möchte? Kein Problem. Im Dachgeschoss befindet sich ein Zimmer mit einem Küchenbereich, der ein selbstständiges Leben unter der Geborgenheit der Eltern ermöglicht. Sollte die Küche im Dachgeschoss nicht benötigt werden, ist ein Rückbau ohne weiteres realisierbar. Des Weiteren gibt es im Dachgeschoss eine zusätzliche und bereits vorbereitete Ausbaureserve, die derzeit als Abstellraum genutzt wird.

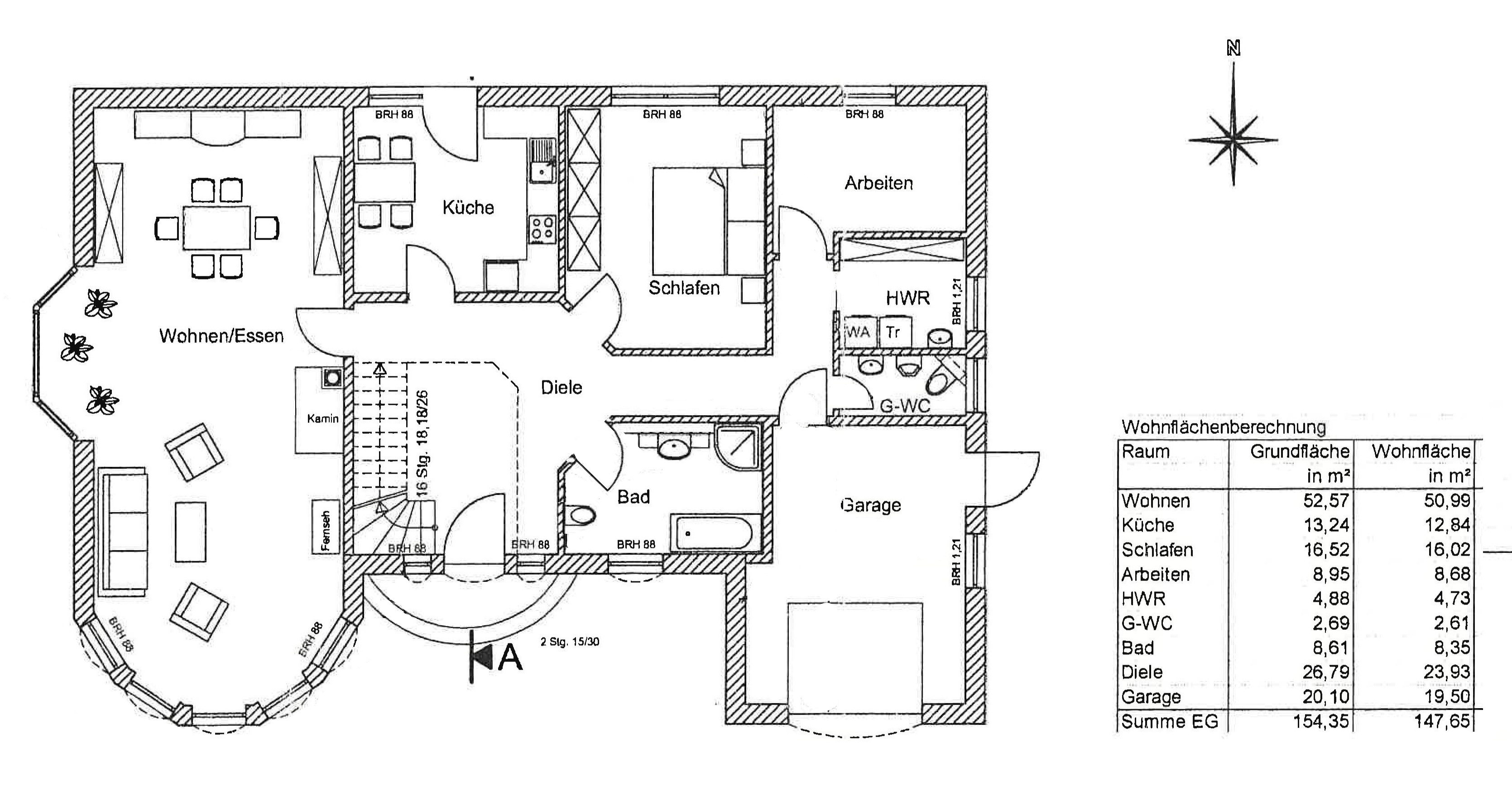
ERDGESCHOSS (ca. 128,15 m² Wohnfläche):
- Diele
- großes, lichtdurchflutetes Wohn- und Esszimmer mit Erker und Kamin
- Küche mit Zugang zum Garten und dekorativen Holzbalken, farblich abgestimmt mit der im Objekt verbleibenden hochwertigen Einbauküche
- ein Zimmer
- Bad
- Flur mit Zugang zur Garage, zum Gäste-WC, zum Hauswirtschaftsraum und einem weiteren Zimmer

DACHGESCHOSS (ca. 91,55 m² Wohnfläche):
- architektonisch ansprechende Galerie mit Möglichkeit z. B. zur Einrichtung eines Homeofficebereiches
- geräumiges Zimmer mit sichtbaren Holzbalken und offen gestaltetem Küchenbereich
- Bad
- Schlafzimmer
- großer ausgebauter Abstellraum, Ausbaureserve

SPITZBODEN:
- nicht ausgebaut
- Fläche für Abstellmöglichkeiten
- erreichbar über eine Bodeneinschubtreppe

Da das Leben nicht nur in den eigenen Wänden stattfindet, erwartet Sie eine Terrasse mit Blick auf den gepflegten und begrünten Garten. Und damit das Grün auch an heißen Sommertagen erhalten bleibt, liefert ein schmückender Brunnen kostengünstig das erforderliche Wasser. Ein gemütliches Holzgartenhaus ermöglicht auch an kühleren Tagen einen behaglichen Aufenthalt im Außenbereich.

Auch an die Autos wurde gedacht. Dafür gibt es eine direkt mit dem Haus verbundene Garage mit Überdachung und ein zusätzlicher Carport mit integriertem Abstellraum.

Zusammengefasst können Sie hier eine Immobilie erwerben, die viel Raum zur Entfaltung, zum Leben und zum Genießen bietet. Kontaktieren Sie uns und überzeugen Sie sich bei einer Hausbesichtigung von der Besonderheit dieses Einfamilienhauses!

Lage

Die Immobilie befindet sich in Böhlitz-Ehrenberg am westlichen Stadtrand von Leipzig, in einem ruhig gelegenen und beliebten Wohngebiet mit fast ländlichem Charakter. An Böhlitz-Ehrenberg grenzt im Norden der Auwald, der zahlreiche Erholungsmöglichkeiten bietet. Im Stadtteil gibt es Kindertagesstätten, Schulen, Einkaufsmöglichkeiten und Ärzte, alles ist auf kurzen Wegen erreichbar. Es besteht eine sehr gute Verkehrsanbindung. Mit Bus und Straßenbahn gelangt man u. a. zügig ins Stadtzentrum von Leipzig. Mit den schnell zu erreichenden Bundesstraßen 181 und 87, den Autobahnen BAB 9 und 14 sowie den Bahnhöfen in Rückmarsdorf und Leipzig-Leutzsch ist eine überregionale Verkehrsanbindung gegeben.

Fußweg zu öffentlichen Verkehrsmitteln: ca. 8 min.
Fahrzeit zum nächsten Bahnhof: ca. 4 min. (Rückmarsdorf)
Fahrzeit zur nächsten BAB: ca. 12 min. (BAB 9)
Fahrzeit zum nächsten Flughafen: ca. 20 min.

Ausstattung

Bei der Ausstattung wurde viel Wert auf hohe Qualität und auf den Einsatz von hochwertigen und geschmackvollen Materialien gelegt.

- zwei hochwertige Einbauküchen mit Elektrogeräten
- Bad im Erdgeschoss mit Wanne, Eckdusche, Handtuchheizkörper, Waschbecken und WC
- Gäste-WC mit Urinal
- Bad im Dachgeschoss mit Wanne, Dusche, WC sowie Anschlüssen für Waschbecken und Waschmaschine
- Kachelkamin im Wohnzimmer
- Fußbodenheizung
- Viessmann Luft-Wärme-Pumpe zur Wärme- und Warmwasserversorgung (neu 2020)
- Photovoltaikanlage zur Erzeugung von Strom zur Nutzung im Haushalt oder zur Einspeisung ins öffentliche Netz
- Erdgeschoss mit doppelt verglasten Holzsprossenfenstern mit elektrisch über Zeitschaltuhren bedienbaren Rollläden
- Fliesen- und Laminatböden
- Echtholztüren mit Glaseinsätzen
- Garage mit elektrisch betriebenem Schwenktor
- Brunnen

Keller Terrasse vorhanden Einbauküche Rollladen vorhanden

Sonstiges

Ein Energieausweis ist vorhanden.
Energieausweistyp: Verbrauchsausweis
Gebäudejahr: 2008
Baujahr Anlagentechnik: 2020
Endenergiekennwert: 39,2 kWh/(m²*a)
Energieeffizienzklasse: A
Energieverbrauch für Warmwasser enthalten: ja
Wesentlicher Energieträger: Strom
Ausgestellt am: 25.10.2023
Gültig bis: 25.10.2033

Alle Angaben sind ohne Gewähr und basieren auf Informationen, die uns von unserem Auftraggeber zur Verfügung gestellt wurden. Wir übernehmen keine Gewähr für die Vollständigkeit, Richtigkeit und Aktualität dieser Angaben. Irrtum und Zwischenverkauf vorbehalten.

Energieausweisangaben

A+
A
B
C
D
E
F
G
H
  • Enerigeausweistyp Verbrauchsausweis
  • Energiekennwert 39 KWh(m²*a)
  • Energieeffizienzklasse A
  • Energie mit Warmwasser ja
  • Energieausweis erstellt am 25.10.2023
  • Energieausweis gültig bis 25.10.2033
  • Heizungsart Fußbodenheizung
  • Befeuerung / Energieträger Wärmepumpe

Grundrisse

Wie können wir Ihnen behilflich sein?

Herzlichen Dank für Ihre Anfrage.

Wir werden diese so schnell wie möglich bearbeiten.

Wie können wir Ihnen behilflich sein?
* Pflichtfeld